
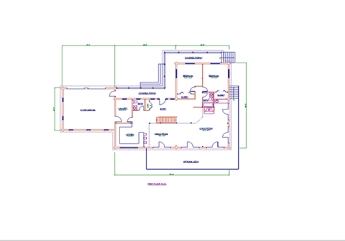
The charming covered porch leads to a formal entry area that is open to the soaring roofline. This large and majestic home features an open entertaining space with elegant living room and formal dining room. Both of these impressive spaces are also open to the roof. The sumptuous master bedroom suite has a private balcony and glass on three sides. There is a large laundry room conveniently located on the first floor. Four additional bedrooms make this home perfect for welcoming family and friends. An abundance of glass gives this home an open, airy feeling and provides wonderful views from every room.
Footprint: 60’ x 48’
Total Square Footage: 3,502 sq. ft.(1st floor = 2,240 sq. ft. 2nd floor = 1,262 sq. ft.
Garage = 672 sq. ft.
Number of Bedrooms: 5
Number of Bathrooms: 3
Number of Floors: 2
Features: Covered Porch, 672 sq. ft. Attached 2 Car Garage
Mon-Fri: 8am - 4pm
Saturday: By Appointment
Model Tour: By Appointment
Since 1971 Alta Log Homes has been a leader in the industry because it provides a top quality crafted home with the most...
read more...